Brevard County Specialist  ·  ADU Design

Accessory Dwelling
Unit Plans Built for
Brevard County.

Permit-ready ADU drawing sets designed for Brevard County zoning, engineered for your structural requirements, and documented to reduce resubmittals. From pool houses to full guest quarters — we've done it here in Mims.

ADU Project Snapshot  ·  Brevard County, FL
Zoning Type
AU Agricultural Residential
Municipality
Brevard County
Max Height
35'-0"
Building Code
FBC 2023, 8th Ed.
Occupancy Type
R-3 Single Family
Wind Speed Design
150 MPH Exposure D
Setbacks (Accessory)
15' front / 15' rear
Engineer of Record
Coordinated separately
Permit Status
✓ Brevard Online Submittal Ready
Typical Drawing Set
7–9 Sheets

A Second Unit
on Your Existing Lot

An Accessory Dwelling Unit is a secondary living space built on the same parcel as your primary home. In Brevard County, ADUs must meet Brevard County Land Development Code requirements — including setbacks, height limits, and utility connections — before a permit can be issued.

Digital Design produces the complete construction document package your contractor needs to pull a permit and build. We handle the documentation. You choose your builder.

Our ADU drawing sets are produced in Revit, coordinated for structural engineering hand-off, and formatted for Brevard County's online permit submittal system.

POOL
Pool House / Cabana
Living space, bath, kitchenette — coordinated with pool enclosure and mechanical.
GUEST
Guest Quarters
Detached bedroom and bath units for multigenerational living or short-term rental.
IN-LAW
In-Law Suite
Attached or detached secondary living space with full utilities and private access.
OFFICE
Home Office / Studio
Permitted detached structures for professional use, with plumbing and electrical.

A Complete
Permit-Ready
Drawing Set

Every ADU project produces a full construction document package — the same sheet set you see on real Brevard County projects below. No partial plans. No incomplete submittals. Every sheet your engineer and building department needs, in one coordinated set.

G001
Cover Page

Building code data, sheet index, general notes, site plan location, and project information block.

A101
Floor Plan

Dimensioned floor plan at 1/4"=1'-0" with room labels, ceiling heights, door and window tags.

A102
Window & Door Schedule

Complete schedule with family types, rough opening sizes, design pressure zones, and windborne debris notes.

A201
Elevations

All four exterior elevations with FFE, roof bearing, and finish grade datums clearly labeled.

A202
Sections & Details

Building sections, wall sections, and connection details required for engineer review and permit.

S101
Foundation & Roof Plan

Foundation layout, stem wall details, roof framing plan, and structural notes including ICF or CMU specifications.

E101
Electrical Plan

Panel schedule, circuit layout, GFCI locations, smoke detector placement, and electrical legend per NEC/FBC.

G201
3D Views

Revit-generated 3D perspective views for client review and HOA submittal — included at no additional cost.

Completed ADU Work
in Mims, Florida

Pool House Addition  ·  Brevard County

Colman Residence

3125 Davis Rd, Mims, Florida 32754

A pool house addition to an existing Brevard County residence — designed to coordinate with a screen enclosure, spa, and fire pit area. The project included a living room with vaulted ceiling, bedroom with tray ceiling, pool bath, laundry, and kitchen. Structural system was ICF wall construction on an 8" CMU stem wall, designed for 150 MPH wind exposure.

Drawing set included 7 sheets: cover page, screen enclosure layout, floor plan with full door/window schedules, four-perspective 3D views, elevations with sections, foundation and roof plan, and full electrical plan with panel schedule.

Zoning
AU / Brevard Co.
Structure
ICF + CMU
Sheets
7 — Full Set
G001 Cover A101 Enclosure A102 Floor Plan A103 3D Views A201 Elevations S101 Foundation E101 Electrical
Colman Residence Floor Plan
Sheet A102  ·  Pool House Floor Plan
Colman Residence — 3125 Davis Rd, Mims
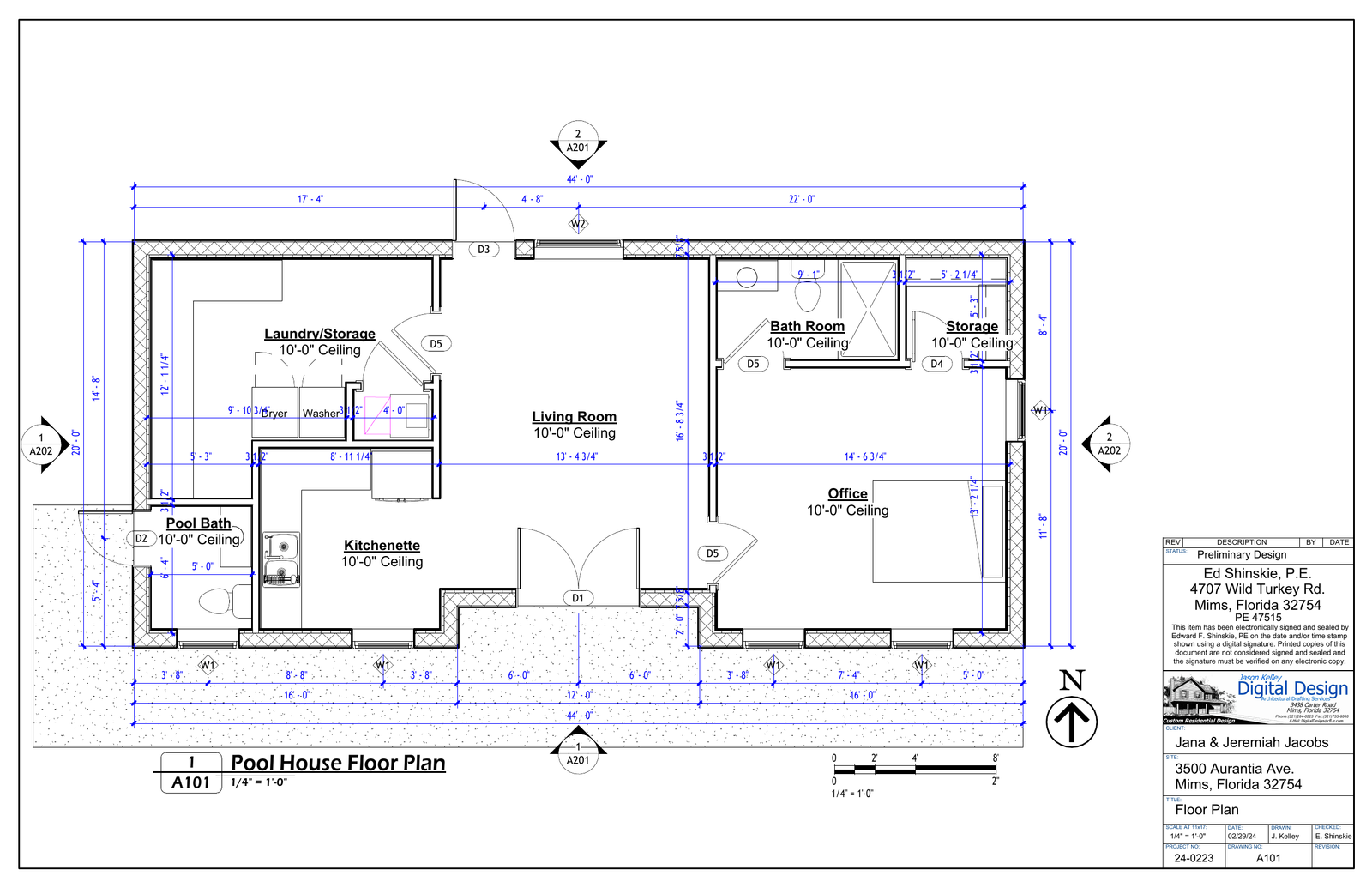
Jacobs Residence Floor Plan
Sheet A101  ·  Floor Plan
Jacobs Residence — 3500 Aurantia Ave, Mims
Pool House — ADU  ·  Brevard County

Jacobs Residence

3500 Aurantia Ave, Mims, Florida 32754  ·  Project No. 24-0223

A detached pool house designed to FBC 2023, 8th Edition — Brevard County's current adopted code. The structure features a 44' × 20' footprint with living room, office, kitchenette, pool bath, laundry/storage, and full bathroom. Signed and sealed by Ed Shinskie, P.E. (PE 47515).

Drawing set included cover page with full building code data, floor plan, window and door schedule with design pressure zones, front/rear and side elevations, roof framing plan, and 3D front right and back left views produced directly from Revit.

Footprint
44' × 20'
Code
FBC 2023
Sheets
7 — Full Set
G100 Cover A101 Floor Plan A102 Door/Window A201 Front/Rear Elev. A202 Side Elev. S201 Roof Framing G201 3D Views
Pool House + Garage Conversion  ·  Dual Scope  ·  City of Titusville

Carter Residence

1250 Pine Cone Court, Titusville, Florida 32796  ·  Project No. 23-0207

Digital Design's most expansive ADU project type: a simultaneous pool house addition and garage conversion — two scopes of work documented in a single coordinated permit set. The pool house features a living area, Bedroom #5, kitchenette, pool bath, Florida room, screen porch, and pool house porch. The garage conversion adds a kitchenette, living area, bedroom, WIC, and bathroom — creating two fully functional accessory units at once.

At 11 sheets, this is the most complete drawing set shown here. It includes a demolition plan, full plumbing plan with riser diagrams, building sections, CMU infill elevation, roof plan with lintel schedule, and separate electrical plans for each structure — all coordinated under one permit package. Zoning: SEU, City of Titusville. Signed and sealed by Ed Shinskie, P.E. (PE 47515), dated October 2024.

Scope
Dual — 2 Units
Zoning
SEU / Titusville
Sheets
11 — Full Set
G100 Cover G101 General Notes AD101 Demolition A101 Floor Plans A201 Elevations S101 Foundation S102 Bldg Sections S201 Roof Plan P101 Plumbing E100 Elec. Notes E101 Elec. Plans
Carter Residence Floor Plan
Sheet A101  ·  Proposed Floor Plan — Dual Scope
Carter Residence — 1250 Pine Cone Court, Titusville

Local Knowledge

What Makes Brevard ADUs
Different

01  ·  Wind

150 MPH Exposure D

Brevard County's coastal wind exposure classification affects every structural element — wall systems, roof framing, anchor bolts, and opening protection. Every drawing we produce is designed to this requirement from day one, not retrofitted at engineer review.

02  ·  Setbacks

Accessory Structure Rules

In Brevard's AU zoning, accessory buildings must be located behind the front building line of the primary structure, set back not less than 15 feet from the front and no less than 15 feet from rear and side lot lines. We verify this before a single line is drawn.

03  ·  Code

FBC 2023, 8th Edition

Florida adopted its current building code in 2023. Our documentation references FBC Residential 2023, FBC Plumbing 2023, FBC Mechanical 2023, FBC Electric 2023, and NFPA 70 — the complete code stack your permit reviewer expects to see on the cover sheet.

04  ·  Submittal

Online Portal Ready

Brevard County processes permit applications through its online portal. Our drawing sets are formatted and exported specifically for digital submittal — correct file naming, sheet sizing, and PDF export settings — so your application doesn't get rejected on a technicality.

05  ·  Engineering

Engineer Coordination

We don't sign and seal — but our drawings are structured for clean engineer hand-off. Structural notes, load assumptions, ICF or CMU wall specifications, and truss design criteria are clearly documented so your engineer of record can review and seal efficiently.

06  ·  Coastal

Turtle Lighting When Required

Coastal Brevard properties may require FWC-compliant sea turtle lighting plans for exterior fixtures. We identify this requirement during site review and include the lighting compliance documentation as part of your permit package — not as an afterthought.

Common Questions

ADU Design FAQ

Who signs and seals the drawings?

Digital Design produces the architectural construction documents. A licensed Florida structural engineer signs and seals the structural elements — foundation, roof framing, and wind load calculations. We coordinate that hand-off and work with your chosen engineer or can recommend one we've worked with in Brevard.

What does a typical ADU drawing set cost?

Our pricing is $100/hour or $1.50 per total square foot, depending on project complexity. A 600–800 SF pool house or guest suite typically runs $900–$1,200 for the drawing set, not including engineering fees. We provide a clear scope and price before work begins.

Do I need an ADU permit in Brevard County?

Yes. Any detached structure with plumbing, electrical, or HVAC requires a building permit in Brevard County. Even structures without utilities may require a permit depending on size and use. We identify the permit requirements for your specific project during the initial consultation.

Can I use my own contractor?

Absolutely. Digital Design only provides the construction documents — you choose your own licensed contractor. Many of our clients already have a builder in mind. We can also provide the drawing set to multiple contractors for bidding purposes.

How long does the drawing process take?

A standard ADU drawing set takes 2–4 weeks from signed agreement to permit-ready drawings, depending on project complexity and client review turnaround. This does not include engineering review time or county processing time.

What do I need to provide to get started?

A current survey of your property, your property address, and a general idea of what you want to build. We take care of the rest — zoning check, setback verification, code research, and scope definition — before we start drawing anything.

Ready to Start Your
Brevard County ADU?

Tell us what you're planning. We'll review your property, confirm the zoning requirements, and let you know what your drawing set will include — before any commitment is required.

Request a Project Review